Brahmsstraat 134
Brahmsstraat 134
Brahmsstraat 134
Brahmsstraat 134
Brahmsstraat 134
Brahmsstraat 134
Brahmsstraat 134
Brahmsstraat 134
Brahmsstraat 134
Brahmsstraat 134
Brahmsstraat 134
Brahmsstraat 134
Brahmsstraat 134
Brahmsstraat 134
Brahmsstraat 134
Brahmsstraat 134
Brahmsstraat 134
Brahmsstraat 134
Brahmsstraat 134
Brahmsstraat 134
Brahmsstraat 134
Brahmsstraat 134
Brahmsstraat 134
Brahmsstraat 134

Brahmsstraat 134

CAPELLE AAN DEN IJSSEL

verkocht

Ook uw woning succesvol verkopen? Neem dan contactmet ons op

Gratis waardebepaling

Omschrijving

In de gewilde jonge woonwijk 's-Gravenland ligt dit lichte royale driekamer appartement met gunstig op het zuiden gelegen zonnig terras met vrij uitzicht en eigen berging in de onderbouw. Fijne ligging op de 2e verdieping van een kleinschalig appartementencomplex op een ideale locatie; op loopafstand van o.a. het winkelcentrum 's-Gravenland, openbaar vervoer (bus en metro) en nabij uitvalswegen richting Rotterdam, Utrecht en Den Haag.
Bel voor een vrijblijvende bezichtiging van dit verzorgde appartement!

Indeling:
Begane grond:
Afgesloten centrale hal met brievenbussen, intercom en toegang naar de liften en bergingen. Eigen berging met veel gunstige bergruimte.

2e Verdieping:
Gemeenschappelijke hal met voordeur.
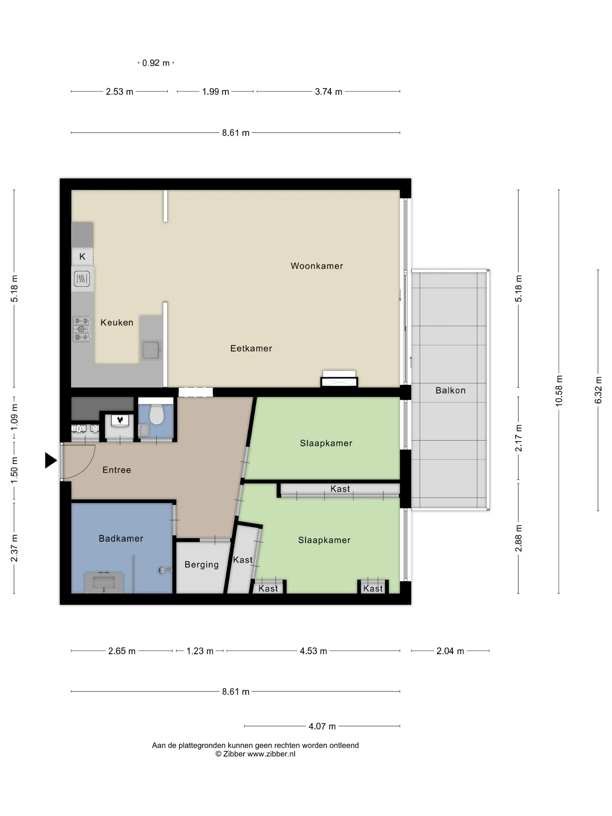
Entree/hal met videofoon, meterkast, vaste kast met de C.V.-combiketel en een in lichte kleurstelling uitgevoerde toiletruimte met fonteintje. Vanuit de hal is riante living bereikbaar, deze bestaat uit een woonkamer met grote schuifpui naar het terras en een keuken welke in U-opstelling is geplaatst. De op maat gemaakte lichte keuken in landelijke stijl met granito aanrechtblad en "tegeltjes spoelbak" is uitgerust met een 4 pits gaskookplaat, afzuigschouw, oven, koelkast en vriezer met 3 laden. In de keuken liggen vloertegels. De gezellige woonkamer met mooie houten vloerdelen is groot genoeg voor een zithoek en een riante eetkamer opstelling. Via de schuifpui is het ruime zonnige op het zuiden gelegen terras bereikbaar. Op het terras liggen kunststof vlonderdelen en dit is een fijne plek om te genieten van het uitzicht over de omgeving. Vanuit de hal zijn de 2 slaapkamers bereikbaar, de grootste van de 2 is voorzien van een vaste schuifkastenwand. In de praktische wasruimte is tevens bergruimte aanwezig. De badkamer is eveneens uitgevoerd in landelijke stijl met een geblokte vloer van getrommelde tegels, design radiator, inloopdouche en een wastafelmeubel.

Bijzonderheden:
- bouwjaar 1995
- voorzien van muurisolatie
- geheel voorzien van dubbele beglazing
- volledig eigen grond situatie
- VvE bijdrage ca. € 243,09,- per maand
- jaarlijkse prijsaanpassing VvE voorbehouden
- verwarming en warm water middels C.V.-combiketel Remeha Avanta, ca. 2011
- mooie paneeldeuren met fraai beslag
- energielabel A+
- oplevering in overleg, indicatie eind oktober 2025
Lees meer

Kenmerken

Overdracht

Status
verkocht
Aanvaarding
in overleg

VvE checklist

Inschrijving KVK
Ja
Jaarlijkse vergadering
Ja
Periodieke bijdrage
Ja (243,09 per maand)
Reservefonds aanwezig
Ja
Onderhoudsplan
Ja
Opstalverzekering
Ja

Bouw

Soort woning
appartement
Soort appartement
portiekflat
Aantal woonlagen
1
Woonlaag
2
Bouwvorm
bestaande bouw
Bouwjaar
1995
Open portiek
nee
Huidige bestemming
woonruimte
Onderhoud binnen
goed
Onderhoud buiten
goed
Voorzieningen
mechanische ventilatie, schuifpui, natuurlijke ventilatie
Isolatie
muurisolatie, dubbel glas

Energie

Energielabel
A++
Verwarming
cv ketel
Warm water
cv ketel
C.V.-ketel
gas gestookte combi-ketel uit 2011 van Remeha Aventa, eigendom

Oppervlakten en inhoud

Woonoppervlakte
90 m²
Bergruimte oppervlakte
6 m²
Buitenruimte oppervlakte
13 m²

Indeling

Aantal kamers
3
Aantal slaapkamers
2

Buitenruimte

Ligging
in woonwijk, vrij uitzicht

Garage / Schuur / Berging

Garage
geen garage
Parkeergelegenheid
openbaar parkeren
Schuur/berging
box

Plattegronden

Locatie

Downloads

Meer informatie?